| Opruimen: Sokobarakken 2017
|
|
|
| Naam |
Sokobarakken 2017
|
| Locatie |
Vrijland
|
| Ruimte |
Begane grond
|
| Datum |
juni 30, 2017 00:00:01 - juni 30, 2017 23:59:59
|
| Contact
|
Lurwah
|
| Info |
Opslag herinrichten
|
Sokobarakken.jpg

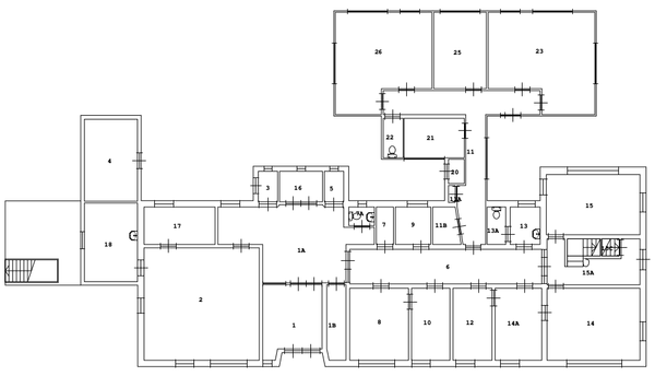
De opslag moet weer opgeruimd worden en wat efficiënter ingericht worden. Op de begane grond mag Hack42 de ruimtes 7 & 9 gebruiken voor opslag. Het doel is om, wat betreft onze spullen, verdere ruimtes en gangen leeg te krijgen en leeg te houden.
ToDo
Voel je vrij om onderstaand overzicht te verbeteren:
| Wat |
Deadline |
Doneness |
Opmerkingen
|
| PCs in ruimte 7 opruimen |
2017-05-30 |
 |
- Strippen en oud ijzer, of claimen en direct afvoeren
- Wat blijft liggen gaat uiterlijk op de deadline bij oud ijzer
|
| Meuk in ruimte 9 naar ruimte 10 |
2017-05-30 |
 |
ruimte 8 is overloop
|
| Oude PCs gang 2e |
- |
 |
Naar oud-metaal
|
| Spullen uit ruimte 25 naar ruimte 7 & 9 |
2017-06-30 |
 |
- Lege rolcontainers mogen blijven staan (worden verkocht)
- Staat nog wat random spul: afvoeren of opbergen
|
| Gangen leeg |
2017-06-30 |
x |
|
| Verdere ruimtes controleren en leegruimen |
2017-06-30 |
x |
- niet-hack42-spul mag blijven staan
- Los spul verzamelen in ruimte 8
- Elektra-spul in 21, wat moet daar mee?
|
| Ruimte 8 |
? |
x |
- Deze ruimte moet leeg. Hack42 heeft op de begane grond alleen ruimte 7 & 9 voor opslag.
- Spullen moeten of weg, of naar ruimte 7, of naar onze verdiepingen toe.
|