Uit Hack42
| Opruimen: Sokobarakken 2017 | |
|---|---|
| Naam | Sokobarakken 2017 |
| Locatie | Vrijland |
| Ruimte | Begane grond |
| Datum | juni 30, 2017 00:00:01 - juni 30, 2017 23:59:59 |
| Contact | Lurwah |
| Info | Opslag herinrichten |
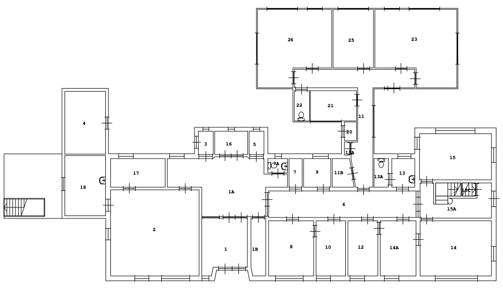
De opslag moet weer opgeruimd worden en wat efficienter ingericht worden.
ToDo
Voel je vrij om onderstaande lijst te verbeteren:
- PCs in ruimte 7 opruimen
- Strippen en oud ijzer, of claimen en afvoeren
- Meuk in ruimte 9 naar ruimte 10 (8 is overloop)
- Spullen uit ruimte 25 naar ruimte 7 & 9
- Lege rolcontainer mogen blijven staan
- Lossen spullen en dozen mogen op de tafels in 7
- Barrvoorraad en groot spul op rolcontainers/wieltjes in 9
