Uit Hack42
k (Stofhok -> Werkplaats) |
|||
| Regel 13: | Regel 13: | ||
=== Eerste verdieping === | === Eerste verdieping === | ||
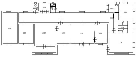
De eerste verdieping bevat: | De eerste verdieping bevat: | ||
| − | * [[Keuken]], [[GameBieb]], [[Bar]], [[Lounge]], [[Balkon1]], [[Lezingen]], [[Repair]], [[Museum]], [[Balkon2]], [[Toilet]], [[Lift]], [[Urinoir]]. | + | * [[Keuken]]:101, [[GameBieb]]:114, [[Bar]]:110/112, [[Lounge]]:108/110, [[Balkon1]]:198/108B, [[Lezingen]]:108A, [[Repair]]:104?, [[Museum]]:102?, [[Balkon2]]:199, [[Toilet]]:103, [[Lift]]:105, [[Urinoir]]:107. |
[[Bestand:Vrijland-Verdiep1.jpg]] | [[Bestand:Vrijland-Verdiep1.jpg]] | ||
| Regel 19: | Regel 19: | ||
=== Tweede verdieping === | === Tweede verdieping === | ||
De tweede verdieping bevat: | De tweede verdieping bevat: | ||
| − | * [[Werkplaats]], [[Cleanroom]], [[Flexlab]], [[Fotostudio]], [[Balkon3]], [[Makerlab]], [[Storage]], [[Lockers]], [[Toilet]], [[Lift]], [[Douche]]. | + | * [[Werkplaats]]:201, [[Cleanroom]]:214, [[Flexlab]]:208/210/212?, [[Fotostudio]]:206?, [[Balkon3]]:206, [[Makerlab]]:202, [[Storage]]:202A, [[Lockers]]:211, [[Toilet]]:203, [[Lift]]:205, [[Douche]]:207. |
[[Bestand:Vrijland-Verdiep2.jpg]] | [[Bestand:Vrijland-Verdiep2.jpg]] | ||
Versie van 28 mrt 2016 16:20
Plattegrond
Hack42 is gevestigd in het Bureelgebouw van Nieuw Vrijland in Arnhem. Onze space is ongeveer 500 vierkante meter groot en gesitueerd op de eerste en tweede verdieping. De rechterzijdeur is onze hoofdtoegang. Parkeren kan aan de achterzijde.
Nieuwe space
Begane grond
De begane grond bevat:
Eerste verdieping
De eerste verdieping bevat:
- Keuken:101, GameBieb:114, Bar:110/112, Lounge:108/110, Balkon1:198/108B, Lezingen:108A, Repair:104?, Museum:102?, Balkon2:199, Toilet:103, Lift:105, Urinoir:107.
Tweede verdieping
De tweede verdieping bevat:
- Werkplaats:201, Cleanroom:214, Flexlab:208/210/212?, Fotostudio:206?, Balkon3:206, Makerlab:202, Storage:202A, Lockers:211, Toilet:203, Lift:205, Douche:207.
DE ONDERSTAANDE LINKS ZIJN NOG NIET UP TO DATE

